
Хоумстейджинг
Услуга по преобразованию объекта недвижимости без полноценного ремонта. Проект направлен на декорирование, меблировку, косметический ремонт.
- План расстановки мебели
- Стилистическая концепция
- Спецификация осветительных приборов, мебели, декора
От 10 000 руб. за комнату, зависит от сложности обновления интерьера
*Двигайте ползунок вправо и влево, чтобы посмотреть «ДО» и «ПОСЛЕ»



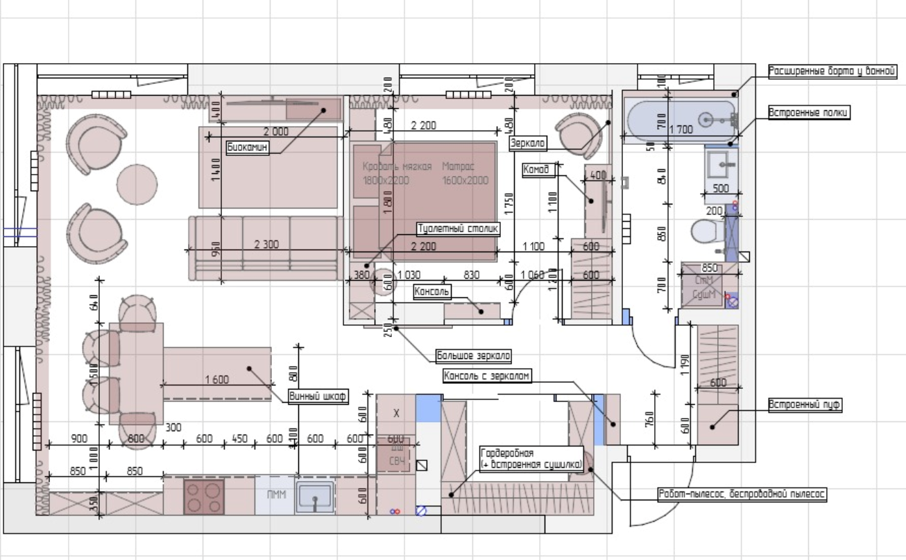
Планировочное решение
Что входит в услугу?
- Обмерный план
- Разработка 2-3х вариантов планировочного решения
20 000 рублей (жилое помещение до 50 кв. м.)
500 рублей за кв. м. (жилое помещение от 50 кв. м.)
Чат поддержки во время ремонта
- Консультация во время ремонта с заказчиками и строителями
5 000р./месяц
Консультация на этапе выбора квартиры и планировочного решения
- Консультация на стадии выбора квартиры (создадим 3-4 планировочных решения и определим подходит ли вам данная квартира)
10 000 рублей.

